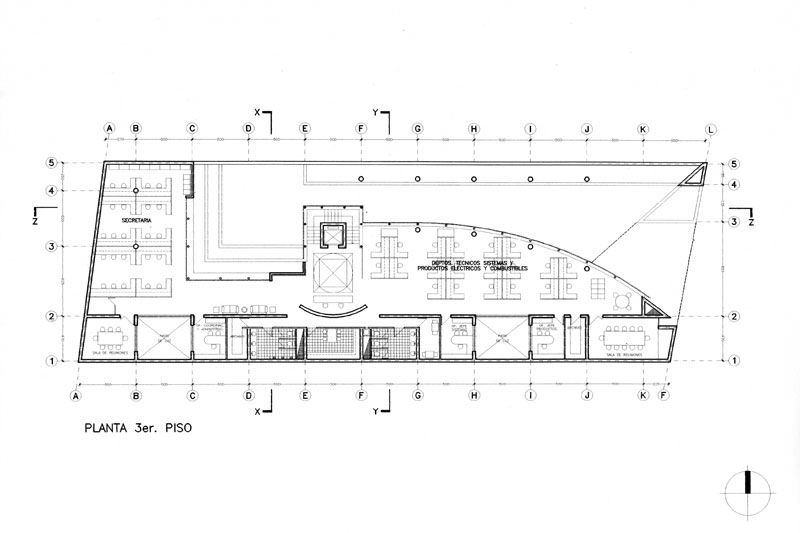
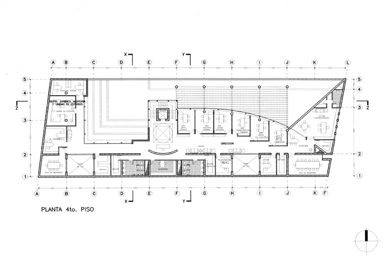
EDIFICIO SEC
La solución propuesta pretende ser eficiente en la resolución de las necesidades específicas que plantea el tema y cumplir además con un objetivo que nos parece de vital importancia cual es el de conseguir una imagen representativa que evoque la eficiencia en los sistemas internos de una institución pública como la SEC (Superintendencia de Electricidad y Combustibles), que en el último tiempo se visto sometida a un conjunto de exigencias y demandas producto de las nuevas necesidades tendientes a la racionalización y maximización de recursos.
En este sentido se pretende que el edificio se abra hacia la calle como analogía a la institución pública que se muestra a la ciudadanía y en directo antagonismo al símbolo burocrático del edificio cerrado y hermético. Los desafíos se centran entonces en lograr el objetivo anterior, pero además estableciendo un diálogo contextual con la consolidad edificación de la vereda poniente de calle Almirante Barroso.
Nace entonces la idea de generar una piel neutra que es la prolongación de la edificación continua en base a muros, y que se perfora drásticamente para dar paso a una fachada interior muy transparente y que se exterioriza haciéndose parte del espacio calle, permitiendo que el edificio trascienda los limites de su angosto frente.
El partido general adoptado se gesta apoyado en la idea anteriormente descrita, y se reafirma con la de ganar el asoleamiento, tema que resulta de vital significancia, dadas las condiciones de edificación entre medianeros y de las proporciones que plantea el terreno.
1° Premio
Año: 1996
Asociados: Jaime Irarrázabal, Felipe Soffia, Juan Pablo Badía, María Eugenia Subiri
Convocado por: Ministerio de Obras Públicas
Patrocinado por: Colegio de Arquitectos
Localización: Almirante Barroso 40 / 46, Santiago Centro
Superficie construida: 3.000 m²
Superficie del terreno: 1.050 m²
Materiales predominantes: Hormigón pigmentado visto, aluminio prepintado y vidrio






