OBRAS
PROYECTOS
CONCURSOS
OFICINA
HISTORIA
CONTACTO
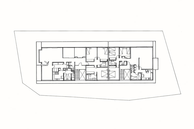
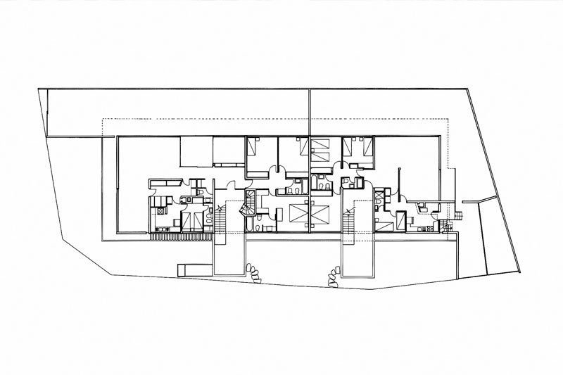
EDIFICIO LA CANDELARIA