OBRAS
PROYECTOS
CONCURSOS
OFICINA
HISTORIA
CONTACTO
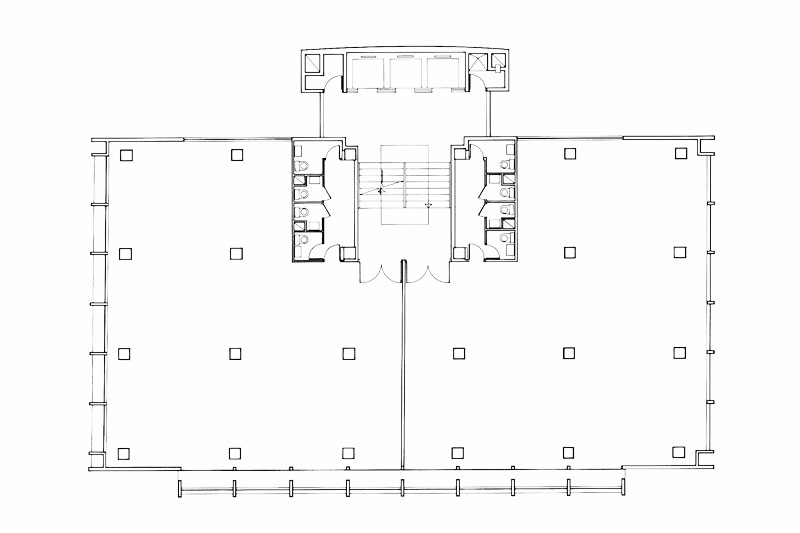
EDIFICIO PARLAMENTO